Oosthavendijk 49, WILHELMINADORP

€ 695.000,- k.k.

Oosthavendijk 49, WILHELMINADORP
Oosthavendijk 49, WILHELMINADORP
Oosthavendijk 49, WILHELMINADORP

Omschrijving

Karakteristieke, riant uitgebouwde twee-onder-een-kapwoning op groot perceel aan kanaal in Wilhelminadorp

Deze sfeervolle en ruime twee-onder-een-kapwoning aan de Oosthavendijk in Wilhelminadorp combineert karakter, comfort en een unieke ligging aan het kanaal met zicht op de ophaalbrug. Dankzij de riante uitbouw beschikt de woning over een lichte woonkamer, een royale woonkeuken en een hele diepe tuin met zowel een schuur als een chalet. Op de eerste verdieping bevinden zich maar liefst vier s... Lees meer

Karakteristieke, riant uitgebouwde twee-onder-een-kapwoning op groot perceel aan kanaal in Wilhelminadorp

Deze sfeervolle en ruime twee-onder-een-kapwoning aan de Oosthavendijk in Wilhelminadorp combineert karakter, comfort en een unieke ligging aan het kanaal met zicht op de ophaalbrug. Dankzij de riante uitbouw beschikt de woning over een lichte woonkamer, een royale woonkeuken en een hele diepe tuin met zowel een schuur als een chalet. Op de eerste verdieping bevinden zich maar liefst vier slaapkamers en een moderne badkamer. Authentieke details en een prettige lichtinval geven de woning een warme uitstraling. Daarnaast is er geïnvesteerd in duurzaamheid, met onder meer zonnepanelen en een recent vernieuwde CV-installatie. Een charmant geheel op een bijzondere locatie waar het uitzicht dagelijks blijft verrassen.

De woning is gelegen in Wilhelminadorp, op korte afstand van Goes. Voorzieningen zoals supermarkten, scholen en sportaccommodaties zijn binnen enkele minuten bereikbaar. Ook de uitvalswegen richting de A58 zijn goed ontsloten. De omgeving wordt gekenmerkt door groen en water, met volop wandel- en fietsmogelijkheden langs het kanaal.

Begane grond
U betreedt de woning via de hal met meterkast (12 groepen). Vanuit hier bereikt u de ruime woonkamer, die direct opvalt door de grote raampartijen aan de voorzijde en het fraaie zicht op het kanaal. De combinatie van strakke plafonds en warme kleuren zorgt voor een prettige en uitnodigende sfeer. Aan de achterzijde bevindt zich een doorgang naar de gang met trapopgang en toegang tot de riante woonkeuken. De keuken is uitgevoerd met houten kastfronten en voorzien van diverse inbouwapparatuur, waaronder een combi-oven, magnetron, koelkast, vrieskast, gaskookplaat, afzuigkap, spoelbak met Quooker, vaatwasser en een bordenwarmer. Aansluitend ligt de ruime eetkamer, een lichte ruimte met een grote glazen schuifpui en direct contact met de tuin.
Grenzend aan de keuken bevindt zich de bijkeuken met aansluitingen voor wasmachine en droger en de opstelling van de CV-ketel (Intergas, 2024). Vanuit hier is het toilet met fonteintje bereikbaar. Een extra hal biedt toegang tot de tuin en is voorzien van een inbouwkast en een praktische douche.

Eerste verdieping
De overloop geeft toegang tot vier slaapkamers en de badkamer. Door de uitbouw aan de achterzijde en de aanwezigheid van twee grote dakkapellen is er opvallend veel ruimte gecreëerd. Aan de achterzijde bevinden zich twee ruime slaapkamers, waaronder de hoofdslaapkamer. De overige twee kamers liggen aan de voorzijde en hebben een speelse indeling. Alle slaapkamers zijn voorzien van airconditioning.
De badkamer is centraal gelegen en modern afgewerkt, met een inloopdouche voorzien van regendouche, een dubbel wastafelmeubel en een tweede toilet.

Tuin
De diepe achtertuin biedt volop ruimte en mogelijkheden. Direct achter de woning ligt een ruim terras, waarna de tuin speels naar beneden afloopt. In het midden bevindt zich een veranda, ideaal om beschut buiten te zitten.
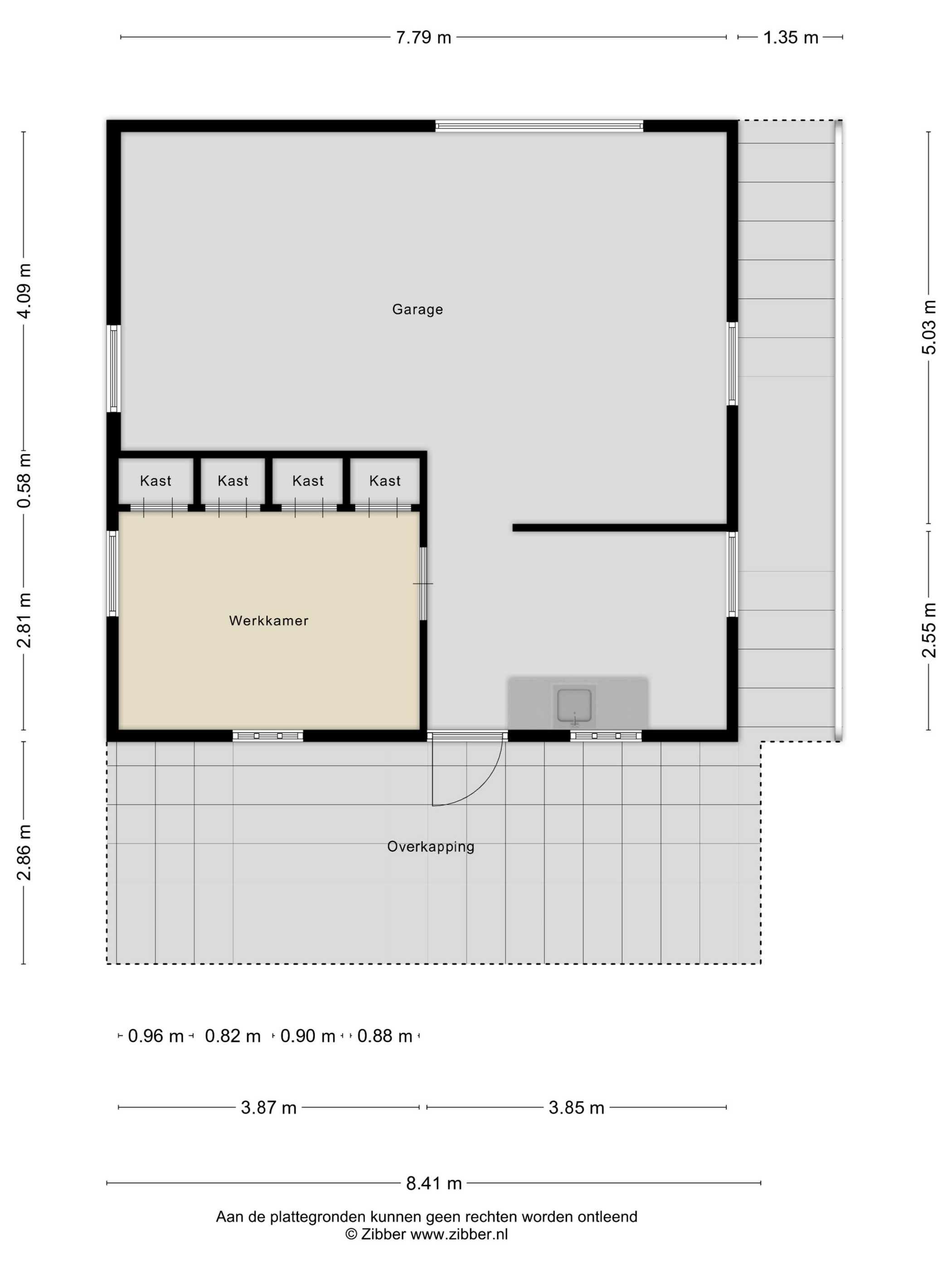
Achterin de tuin staat een grote schuur met daarin een kantoorruimte en een keukenblok. Dankzij de garagedeur is deze ruimte ook geschikt voor het stallen van bijvoorbeeld een oldtimer, bootje of andere materialen. Onder de twee karakteristieke kastanjebomen bevindt zich een ruim chalet, een multifunctionele ruimte die uitstekend kan dienen als gastenverblijf of hobbyruimte.
De tuin is bereikbaar via een achterom en middels een recht van overpad is de achterzijde ook met de auto, caravan of camper toegankelijk.

Kenmerken op een rij
- Karakteristieke, riant uitgebouwde twee-onder-een-kapwoning
- Vier slaapkamers
- Lichte woonkamer met zicht op het kanaal
- Ruime woonkeuken van alle gemakken voorzien
- Diepe achtertuin met grote schuur en chalet
- Moderne badkamer met regendouche en dubbele wastafel
- Gelegen nabij voorzieningen en uitvalswegen
- Voorzien van 10 zonnepanelen 410Wp
- Voorzien van airco op alle slaapkamers

Een woning met karakter, uitzicht en mogelijkheden op een bijzondere plek in Wilhelminadorp. Grijp uw kans en

Kijk voor meer informatie en de uitgebreide, luxe virtuele tour op onze website.
Deze informatie is door ons met de nodige zorgvuldigheid samengesteld. Onzerzijds wordt echter geen enkele aansprakelijkheid aanvaard voor enige onvolledigheid, onjuistheid of anderszins, dan wel de gevolgen daarvan. Alle opgegeven maten en oppervlakten zijn indicatief.

De objecten worden opgemeten volgens de Meetinstructie, welke is gebaseerd op de NEN2580. De Meetinstructie is bedoeld om een meer eenduidige manier van meten toe te passen voor het geven van een indicatie van de gebruiksoppervlakte. De Meetinstructie sluit verschillen in meetuitkomsten niet volledig uit, door bijvoorbeeld interpretatieverschillen, afrondingen of beperkingen bij het uitvoeren van de meting.

Details

Overdracht

Vraagprijs
€ 695.000,- k.k.
Status
beschikbaar
Aanvaarding
in overleg

Bouw

Soort woning
woonhuis
Soort woonhuis
eengezinswoning
Type woonhuis
twee onder een kapwoning
Aantal woonlagen
2
Bouwvorm
bestaande bouw
Bouwjaar
1903
Huidige bestemming
woonruimte
Onderhoud binnen
goed
Onderhoud buiten
goed
Voorzieningen
rolluiken, tv kabel, airconditioning, schuifpui, glasvezel kabel, zonnepanelen, natuurlijke ventilatie
Isolatie
dakisolatie, muurisolatie, dubbel glas, hr glas

Energie

Energielabel
A
Verwarming
cv ketel, vloerverwarming gedeeltelijk
Warm water
cv ketel
C.V.-ketel
Intergas (gas gestookt combiketel, uit 2024, eigendom)

Oppervlakten en inhoud

Woonoppervlakte
150 m²
Perceeloppervlakte
1.204 m²
Inhoud
692 m³
Inpandige ruimte oppervlakte
46 m²
Bergruimte oppervlakte
27 m²
Buitenruimte oppervlakte
35 m²

Indeling

Aantal kamers
6
Aantal slaapkamers
4

Buitenruimte

Ligging
aan water, vrij uitzicht, aan vaarwater
Tuin
achtertuin met een oppervlakte van 1060 m² en is gelegen op het zuidoosten

Garage / Schuur / Berging

Garage
geen garage
Parkeergelegenheid
openbaar parkeren
Schuur/berging
vrijstaand hout

Plattegronden