Hoogewei 48, GOES

€ 395.000,- k.k.

Hoogewei 48, GOES
Hoogewei 48, GOES
Hoogewei 48, GOES

Omschrijving

Sfeervolle, robuuste eengezinswoning met aangebouwde berging en heerlijke tuin!

Algemeen:
In de kindvriendelijke woonwijk Noordhoek deze sfeervolle, geschakelde woning (1979) met aangebouwde berging (voorheen garage).
Deze geschakelde woning, staande op een ruim perceel grond van 229 m², heeft alle praktische voorzieningen zoals (basis)scholen, het station, het stadscentrum en de ‘Hollandsche Hoeve’ met speeltuin, zwembad en sporthal op loop-/fietsafstand, waardoor het een uitermate geschi... Lees meer

Sfeervolle, robuuste eengezinswoning met aangebouwde berging en heerlijke tuin!

Algemeen:
In de kindvriendelijke woonwijk Noordhoek deze sfeervolle, geschakelde woning (1979) met aangebouwde berging (voorheen garage).
Deze geschakelde woning, staande op een ruim perceel grond van 229 m², heeft alle praktische voorzieningen zoals (basis)scholen, het station, het stadscentrum en de ‘Hollandsche Hoeve’ met speeltuin, zwembad en sporthal op loop-/fietsafstand, waardoor het een uitermate geschikte woning is voor gezinnen met opgroeiende kinderen.
De woning ligt aan een woonerf, waardoor de straat verkeersluw is gemaakt en bedoeld is voor langzaam verkeer, zoals fietsers en voetgangers. Auto’s rijden er stapvoets en hier en daar zijn enkele parkeervakken voor gasten van bewoners aangelegd.

Sfeervolle voor- en achtertuin
Aan de voorzijde van de woning is de tuin weelderig voorzien van volwassen groen en biedt u veel privacy.
De sfeervolle achtertuin, die taps toeloopt naar het erachter gelegen plein, heeft een geweldige kleurenpracht door de grote volwassen struiken en bomen, die in elk jaargetijde weer net even anders is. Er zijn verschillende zitjes voor in de zon, schaduw of luwte. Voor een speciaal moment is er is altijd wel een leuke plek onder de pergola te vinden en gegarandeerd veel privacy.
Aan de achterzijde van de woning is er een openbare parkeergelegenheid en vanzelfsprekend toegang tot de achtertuin. U kunt uw auto parkeren op het plein.

Indeling
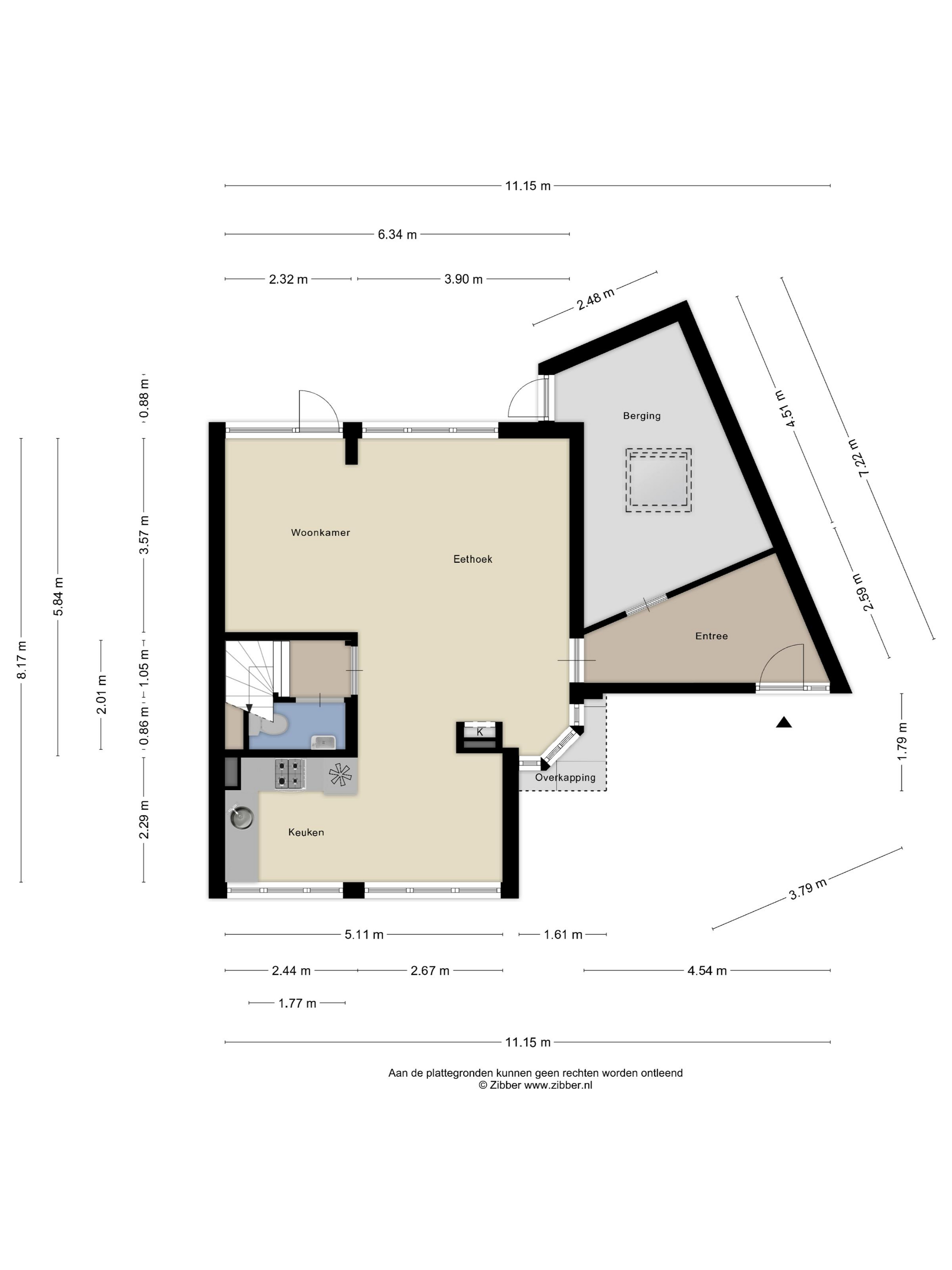
De originele buitenentree is verplaatst en bevindt zich nu aan de rechterzijde van de woning, waarbij de voormalige garage is verbouwd tot een grote berging en een ruime hal voor de ontvangst van uw gasten. Via de hal kunt u de berging en de woonkamer bereiken. De berging heeft een lichtkoepel en een tuindeur.

Speelse woonkamer met halfopen keuken
De woonkamer (ca. 32 m²) staat in halfopen verbinding met de aan de voorzijde gelegen keuken (ca. 12 m²). Op de begane grond ligt een mooie parketvloer (essenhout). Vanuit de woonkamer heeft u een onbelemmerd uitzicht op de fraaie kleurrijke tuin.
De cyclaamkleurige keuken staat in L-vormige opstelling, is functioneel en praktisch van opzet met veel kastruimte en een degelijk granieten werkblad met een rond rvs. spoelbak. De volgende apparatuur is aanwezig: 4-pits gasfornuis met oven, rvs. afzuigkap en vaatwasser. De koelkast staat vrij in de keuken. In de keuken is er ruimte voor een kast of ontbijttafel. Tussen de woonkamer en keuken ligt deels het tussenportaal met toilet (gedateerd) en trapopgang naar de verdieping.

1e Verdieping
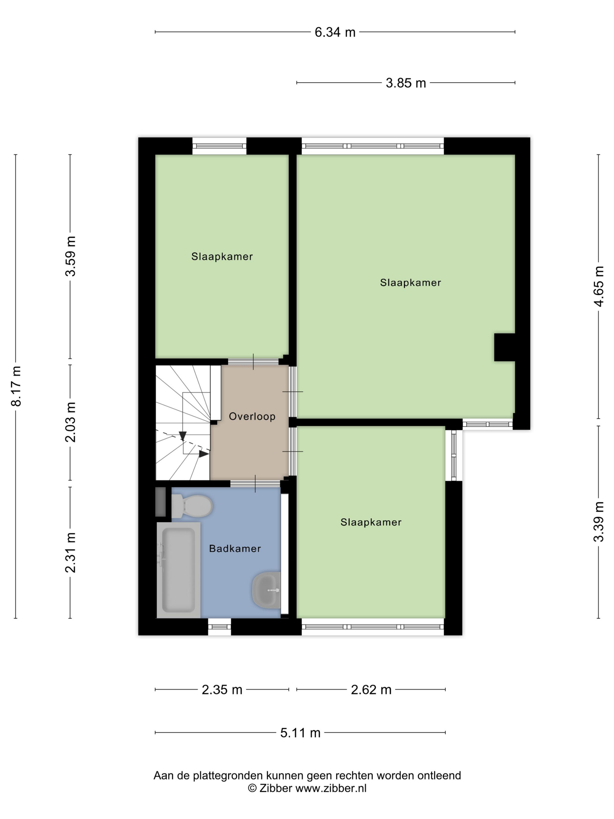
Op de 1e verdieping bevinden zich de overloop, drie slaapkamers en de badkamer. Twee slaapkamers, waaronder de ouderslaapkamer, zijn gesitueerd aan de tuinzijde en resp. 8 en 18 m² groot. De derde slaapkamer (ca. 9 m²) en de badkamer (ca. 5 m²) liggen aan de voorzijde.
De verwarmde badkamer is al eens gerenoveerd en geheel voorzien van een licht gemêleerde lichte vloer- en wandbetegeling, een ligbad, duoblok toilet en wastafel. Het zijraam zorgt voor de natuurlijke ventilatie.

2e verdieping
Ook de 2e verdieping is met vaste trap bereikbaar. Hier treft u een grote overloop aan met de cv-installatie en aan weerszijden een grote open bergruimte. De gezellige zolderslaapkamer (ca. 10 m²) is ruim van opzet en ideaal voor grotere kinderen. Op de verdieping ligt een mozaïek parkvloer.

Bijzonderheden:
• Vraagprij: € 395.000,--
• Levering in overleg in overleg, snelle levering is mogelijk .
• Bouwjaar van de woning is 1979. Inhoud van de woning is circa 494 m³.
Het woonoppervlak is 126 m² / berging-oppervlak circa 13 m².
• CV en warmwater: HR-combi ketel, merk ‘Nefit’, type HRC25 Trendline HRC30 CW5, bouwjaar 2016.
• Houten kozijnen met dubbel en enkel glas. Alle vloeren zijn van beton.
• De houten gevel beplating is rondom vernieuwd het afgelopen jaar.
• Meterkast: 6 groepen plus 1 aardlekschakelaar (stoppenkast) , gas en watermeter.
• Energielabel ??, geldig tot ???? 2035
• Kadastrale aanduiding: Gemeente Goes, sectie B, nr. 2242, groot 229 m² grond en
1/140 onverdeeld aandeel in perceel grond Gemeente Goes, sectie B, nr. 2248, groot 9 m²

Kijk voor meer informatie en de uitgebreide, luxe virtuele tour op onze website.

Deze informatie is door ons met de nodige zorgvuldigheid samengesteld. Onzerzijds wordt echter geen enkele aansprakelijkheid aanvaard voor enige onvolledigheid, onjuistheid of anderszins, dan wel de gevolgen daarvan. Alle opgegeven maten en oppervlakten zijn indicatief.

De objecten worden opgemeten volgens de Meetinstructie, welke is gebaseerd op de NEN2580. De Meetinstructie is bedoeld om een meer eenduidige manier van meten toe te passen voor het geven van een indicatie van de gebruiksoppervlakte. De Meetinstructie sluit verschillen in meetuitkomsten niet volledig uit, door bijvoorbeeld interpretatieverschillen, afrondingen of beperkingen bij het uitvoeren van de meting.

Details

Overdracht

Vraagprijs
€ 395.000,- k.k.
Status
beschikbaar
Aanvaarding
in overleg

Bouw

Soort woning
woonhuis
Soort woonhuis
eengezinswoning
Type woonhuis
geschakelde woning
Aantal woonlagen
3
Bouwvorm
bestaande bouw
Bouwjaar
1979
Huidige bestemming
woonruimte
Onderhoud binnen
goed
Onderhoud buiten
goed
Voorzieningen
tv kabel, buitenzonwering, glasvezel kabel

Energie

Verwarming
cv ketel
Warm water
cv ketel
C.V.-ketel
gas gestookte combi-ketel uit 2016 van Nefit Trendline HRC30 CW5, eigendom

Oppervlakten en inhoud

Woonoppervlakte
126 m²
Perceeloppervlakte
238 m²
Inhoud
493 m³
Inpandige ruimte oppervlakte
13 m²
Buitenruimte oppervlakte
1 m²

Indeling

Aantal kamers
5
Aantal slaapkamers
4

Buitenruimte

Ligging
aan rustige weg, in woonwijk, beschutte ligging
Tuin
achtertuin met een oppervlakte van 87 m² en is gelegen op het noordwesten

Bergruimte

Garage
geen garage
Parkeergelegenheid
openbaar parkeren
Schuur/berging
aangebouwd steen

Plattegronden